Проект дома «Илюша»

руб.
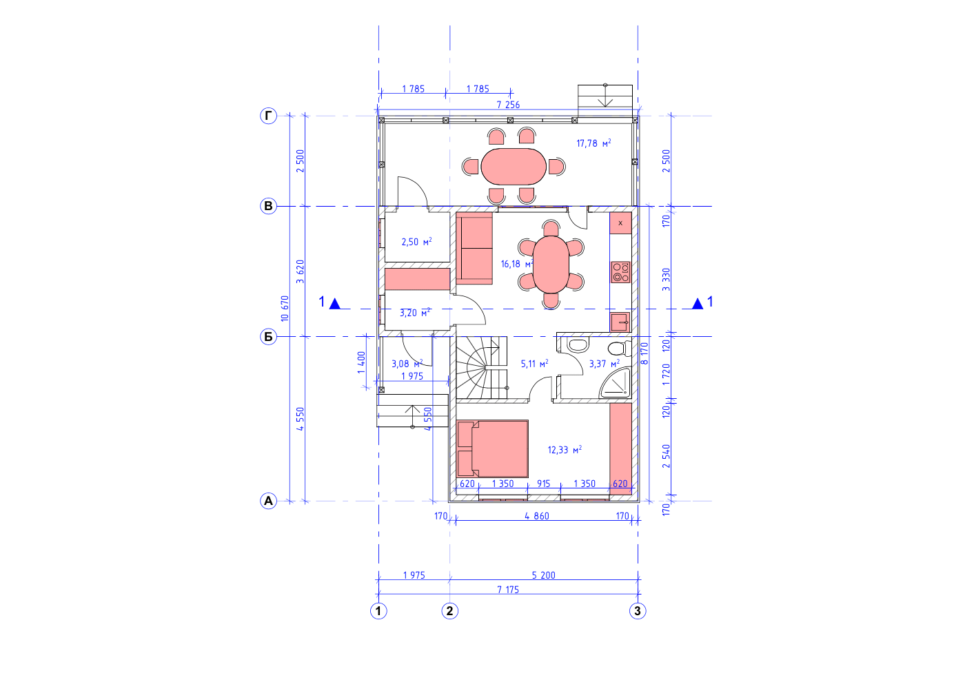
Общая площадь 112 м2

Дом строится по каркасной технологии.

Цена включает:

  • Разводку канализации и воды внутри дома.
  • Полную разводку отопления (до котла) внутри дома
  • Полную разводку электричества

Описание строительства

I. Фундамент свайно-винтовой

  • Сваи диаметром 108 мм, лопасть 300 мм, длина 2,5 м.

II. Каркас дома

  • Каркас дома из обрезного пиломатериала естественной влажности.
  • Балки перекрытий из доски 50х150 мм с шагом 500 мм.
  • Стропильная конструкция из доски 50х150 мм с шагом 500 мм.
  • Внутренние перегородки из доски 50х100 мм.
  • Черновые полы из доски 20х100 мм.
  • Утепление внешних стен 150 мм (утеплитель Rockwool).
  • Утепление пола 1-го этажа 150 мм (утеплитель Rockwool).
  • Утепление крыши 150 мм (утеплитель Rockwool).
  • Звукоизоляция межэтажного перекрытия 100 мм (утеплитель Rockwool).
  • Звукоизоляция внутренних перегородок 50 мм (утеплитель Rockwool).
  • Ветрозащита внешних стен диффузионная мембрана Тайвек Софт.
  • Гидроизоляция крыши диффузионная мембрана Тайвек Софт.
  • Пароизоляция стен и крыши Ютафол Н96.

III. Кровля, окна

  • Металлочерепица М28 полиэстр (сталь 0,5 мм, гарантия 25 лет)
  • Вентилируемое подкровельное пространство (брусок 40х50 мм, доска 25х100 мм).
  • Водостоки металлические Aquasystem.
  • Окна ПВХ белые профиль Rehau двухкамерный стеклопакет 4х12х4х8х4.
  • Входная дверь металлическая.

IV. Внешняя отделка

  • Свесы крыши отделка вагонкой.
  • Внешние стены дома стекломагниевые листы (экологичный, негорючий, влагостойкий, прочный современный материал) с декоративной раскладкой.
  • Покраска внешних стен и свесов крыши текстурным составом.

V. Внутренняя отделка

  • Потолки, полы, стены 1-го и 2-го этажей стекломагниевые листы (экологичный, негорючий, влагостойкий, прочный современный материал).
  • Завершенный монтаж систем канализации и водоснабжения внутри дома.
  • Завершенный монтаж системы отопления (до котла) внутри дома (стальные панели (радиаторы) "Kermi", Германия)
  • Завершенный монтаж электрики. Кабельная сеть внутри дома смонтирована сертифицированным проводом не поддерживающим горение - ВВГ нг ЛС.



Также вы можете посмотреть проекты домов на сайте нашего партнера, компании "СВ Строй", которая 15 лет занимается строительством домов и бань из различных материалов по проектам любой сложности.

Остались вопросы?
Ждем вашего звонка или сообщения.
Отправить сообщение



Дома на горьковском шоссе